Save
Ask
Tour
Hide
Share
$1,900,000
287 Days On Site

3051 Delta Marine Drive
Reynoldsburg, OH 43068

For Sale|Commercial Sale|Pending
0
Beds
0
Total Baths
11,008
SqFt
$173
/SqFt
1997
Built
County:
Franklin
Listing courtesy of Michael A Doss of The Robert Weiler Company: (614) 915-2624
Call Now: (614) 668-7781
Is this the listing for you? We can help make it yours.
(614) 668-7781
3051 Delta Marine Drive3051 Delta Marine Drive3051 Delta Marine Drive3051 Delta Marine Drive
Save
Ask
Tour
Hide
Share

Mortgage Calculator

Monthly Payment (Est.)

$8,669
Calculator powered by Showcase IDX, a Constellation1 Company. Copyright ©2026 Information is deemed reliable but not guaranteed.

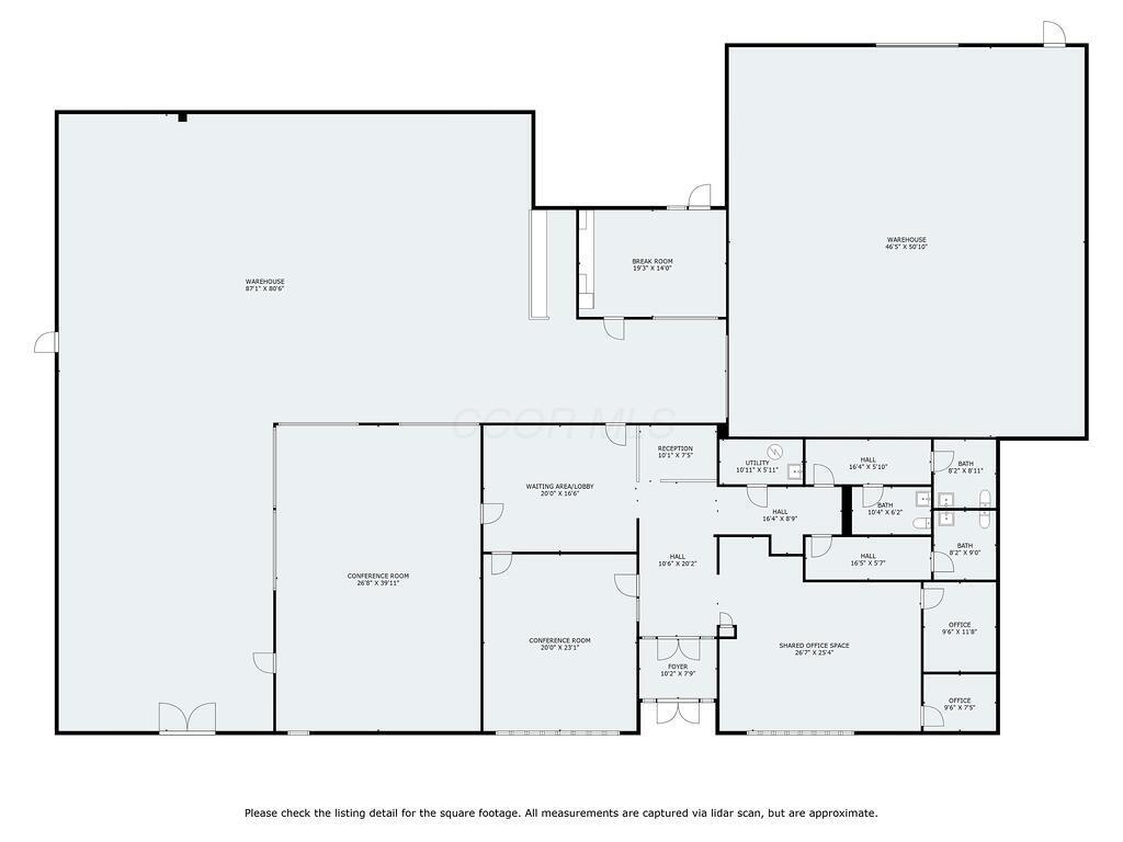
Approximately 11,008 square feet of versatile industrial space ideal for light manufacturing, distribution, or flex use. The property features 20-foot clear heights, one drive-in door, a fenced yard, air conditioning, and ample on-site parking, all situated on a 2.439 +/- acre lot zoned for Light Manufacturing (LM). Conveniently located near major transportation routes, this facility provides excellent access for logistics and operations. This well-maintained, move-in-ready building is immediately available for occupancy and represents a strong value opportunity in the East Columbus industrial market.

Save
Ask
Tour
Hide
Share
Listing Snapshot
Price 
$1,900,000
Days On Site 
287 Days
Bedrooms 
N/A
Inside Area (SqFt) 
11,008 sqft
Total Baths 
N/A
Full Baths 
N/A
Partial Baths 
N/A
Lot Size 
2.44 Acres
Year Built 
1997
MLS® Number 
225013339
Status 
Pending
Property Tax 
N/A
HOA/Condo/Coop Fees 
N/A
Sq Ft Source 
N/A
Friends & Family
Recent Activity
3 months agoListing updated with changes from the MLS®
3 months agoStatus changed to Pending
3 months agoPrice changed to $1,900,000
9 months agoListing first seen on site
General Features
Acres 
2.44
Cross Street 
Gender Rd
Number Of Stories 
1
Special Circumstances 
Standard
SqFt Total 
11008
Save
Ask
Tour
Hide
Share
Community Features
Township 
None
Listing courtesy of Michael A Doss of The Robert Weiler Company: (614) 915-2624



Listing information is provided by Participants of the Columbus and Central Ohio MLS. IDX information is provided exclusively for personal, non-commercial use, and may not be used for any purpose other than to identify prospective properties consumers may be interested in purchasing. Information is deemed reliable but not guaranteed. Copyright 2026, Columbus and Central Ohio MLS.
Last checked: 2026-02-05 04:07 PM UTC

Neighborhood & Commute
Source: Walkscore
Disclosure: Community information and market data powered by Constellation Data Labs. Information is deemed reliable but not guaranteed.
Save
Ask
Tour
Hide
Share